The Weyling Blog

Photographing Classical Architecture

Having faced the challenges of photographing WEYLIN, for which we collaborated with Durston Saylor who took amazing pics, we highly recommend this new class at the Institute of Classical Architecture & Art. Photography plays an essential role in how architecture is perceived, studied, and presented. Every choice made by the photographer helps determine which architectural… Read More

Read More...

Bauhaus: A Century Backward from Now On

Sustainability is one of the most pronounced words in the past few months. Many people still think it is only related to something you do after. You use then recycle – which isn’t a bad case at all -; but the order should be actually in reverse. You design something so you don’t even have to… Read More

Read More...

The Elements of Ornament at ICAA

We know the devil is really in the ornament, specially in the Classical Architecture universe! In classical design, ornament speaks a language used to achieve character. Like the orders of classical architecture, ornament can be resolved into elements. This one-day course provides an introductory overview to the most common ornamental elements, presented in lectures and… Read More

Read More...

Pioneering Female Architect Julia Morgan

“There is nothing more dangerous than a happy man.” This is an incredibly powerful phrase I once read on a David Bowie interview. It took me years to understand it. At first, I thought dear David was referring to “being happy” as a powerful state that could lead and guide you through any situation; a… Read More

Read More...

The Elements of Classical Architecture: The Composite Order

Saturday, February 9, 2019 9:00 AM – 2:30 PM With Mason Roberts at The Institute of Classical Architecture and Art Acting as a base to the wider canon of classical architecture, the five classical orders have been used since antiquity as a means of proportioning buildings in a harmonious way while simultaneously giving logic and… Read More

Read More...

Times Square – Urban Swamp

Talking of the evolution of the species, it’s amazing how far it can travel in time in respect to the behavior within the natural environment. We know that a few million years ago North America, South America and Africa were one compact piece of land, which kept slowly separating in different pieces by climate changes,… Read More

Read More...

The Dakota: 38 Years Away

One of the most iconic New York City buildings’ glamour seems to fade away throughout the years. In December, it’s been 38 years since John Lennon was assassinated as he was entering the Porte-Cochére of The Dakota. Such an event stained the fanciness and glamour of actually one of the most beautiful apartment buildings in… Read More

Read More...

Preservation: Lucy G. Moses Preservation Awards 2018

Call for Nominations: Lucy G. Moses Preservation Awards Deadline for submissions: Friday, January 11, 2019, 5:00pm The New York Landmarks Conservancy has been a leader in preserving, restoring, and reusing New York City’s architectural legacy for more than 45 years. The Moses Awards are the Conservancy’s highest honors for outstanding preservation work. Named in honor of… Read More

Read More...

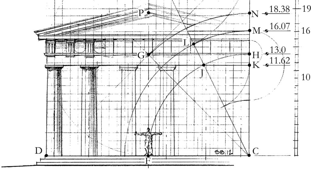
Proportional Porticos

Most of classical architecture is supposed to have so many proportional relations in between each and everyone of its elements, trying to continue the work of nature by its sacred geometry. Don’t miss out this amazing workshop about the Proportional Porticos at The Institute of Classical Architecture & Art. The portico is both a complete… Read More

Read More...

Objective League

Architecture: A few more days to see this super exhibition by The League! An exhibition featuring work from League Prize 2018 winners. The winners’ site-specific installations for the 2018 exhibition both document their work and give form to their ideas. Stretching across the gallery window, Lap Chi Kwong and Alison Von Glinow’s installation features a scale plywood model… Read More

Read More...